JS楽打の特徴
Feature

特徴1
超簡単な操作性で
初心者さんでも安心!
左ボタンだけで作成できるため、パソコンを触ったことのない職人さんや事務員さんでも安心してください。長押し操作やキーボードを併用するような操作はございません。最近ではタッチパネル式のパソコンで直感的に作成されている方もいらっしゃいます。
職人や事務員さんでも簡単な左ボタンのみで作成
見積もりや図面作成に必要な機能のみなので、少ないクリック数で作成できる操作性を確保!初心者でも使えるよう自動機能満載で作成時間を大幅に短縮できます!

特徴2
10万点以上の材料を収録しており労務費も自動計算!小さな現場から大きな現場まで見積が誰でも簡単作成
今までカンと電卓で計算していた労務費の計算がボタン一つで計算できます。メーカーの材料データなどが30,000点以上収録されており、過去のデータやカタログからの単価調べから解放され、ミスなく大幅な時間が短縮できます。これからはデスク周りもすっきりします。


特徴3
予算や売上の共有で属人的な状態を脱却!ノウハウの蓄積が簡単に。
簡単に進捗やノウハウの共有ができるため、誰でも対応できる環境をつくることができます。担当の不在時や退職時にも自社のノウハウを守ることができ属人的な環境から仕組化で脱却できます。
特徴4
見積書作成で請求書まで連動!
今までの漏れや管理のストレスを解消!
見積書や請求書を印刷すると現在の状況が自動反映されます!「いつ見積書や請求書を提出したかわからない」ということがなくなり管理から解放されます。請求書など時期を統一することで取引先も安心です。

見積からすべて連動して一元管理



特徴5
作業者の日報も簡単作成
工事内容や使用材料を入力すると簡単に集計されます。簡単にスマホからの入力も可能で直行直帰など事務所に戻らなくても対応ができます。
特徴6
1日や月間の現場予定を共有で見える化
いつでも、だれでもメンバーの予定が把握でき急な予定の調整なども簡単に行えます。事務所に大きなモニターで共有することでオープンな環境にできます。「だれがどこで何をしているかわからない」という不満も解消!アラート機能搭載で車両管理も簡単にできます。

特徴7
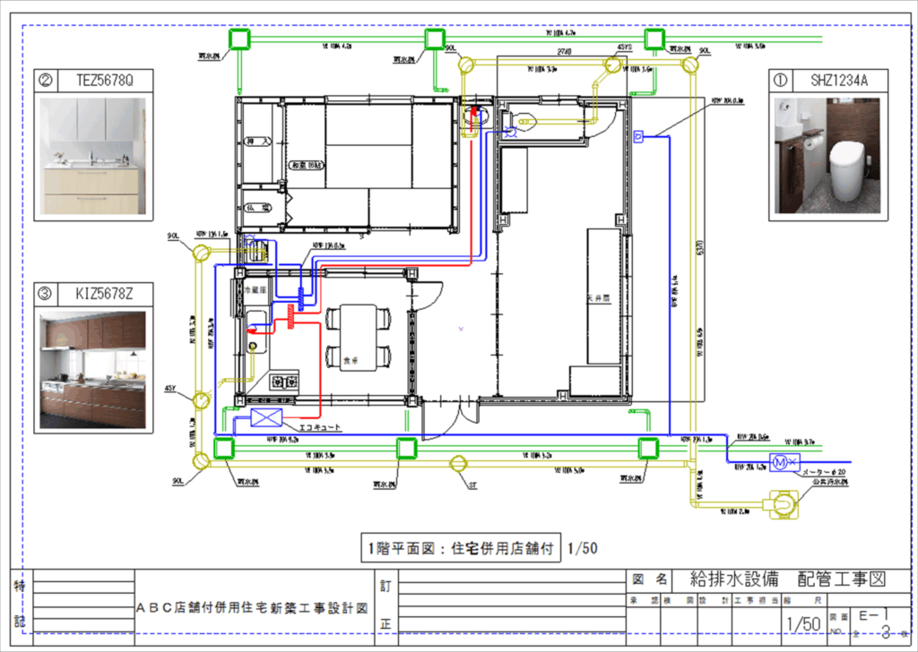
CAD図面とも連動でき拾い出し完了まで0分!
図面と連動で拾い出しもボタン1つで完了!今まで蛍光ペンなどの手作業の拾い出しに比べてミスもなくなります。読み込みも可能で多彩な機能搭載で図面も簡単に作成できます。
ワンクリックで材料拾い出し
見積もりとCADの連動ソフトなので、設計図からワンクリックで簡単に材料を拾い出しが可能!正確な図面から見積もり作成まで約15分!

手書きやFAXの図面からも作成が可能!

水道シンボルを多数収録
内線規定の寸法基準部品を全て搭載!オリジナル部品の追加登録も簡単で単価設定もできます。(見積もり作成に自動反映します)

継ぎ手自動作成
配管の種類に応じて、エルボやソケット、チーズなどを自動で挿入。継ぎ手の種類や向きを変更するときもラクチンです。

単線・複線の自動切り替え
水道工事図面の配管の単線入力・複線入力が行えることはもちろん、単線で作成したものを複線へ、複線で作成したものを単線へワンクリックで変換することができます。

特徴8
多彩なCADデータと連携が可能
JWや他社のCADデータなど取引先にバラバラだと思いますが、楽打はそのようなデータも読みこめます。そのまま送られてきたデータに器具や配管を書き込めるので、書き直す必要がなく大幅に短縮できます。
※3DCADデータは読み込めません。


特徴9
簡単にカタログ写真の貼り付けでプレゼンボード作成で営業利用!
パソコンに保存することなく載せたい写真をインターネットから簡単に貼り付け!その場で簡単に作成することで仕事を受けるだけではなく、新たな仕事を取りにいくことに利用できます。
製品一覧
Lineup

電気CAD・見積
全国の市町村の申請様式に対応。誰でも簡単に申請業務ができる水道CADソフト。平面図から自動で縦断図・立面図を作成。材料集計・水理計算・申請書類への文字転送に至るまで対応。
導入事例
Case
こちらに導入事例が入ります。
よくある質問
FAQ
FAXなどの図面も読み込めますか?
-
上下水道
はい、可能です。
スキャン時の斜めになった図面や縮尺も簡単に合わせることができます。
納品まではどのくらいですか?
-
上下水道
お客様の構成によって異なりますが、通常は1週間ほどでご納品しております。
お問合せ
Contact